Charmantes Haus mit zwei Ferienwohnungen, Doppelgarage, Balkon & Garten in Enkirch an der Mittelmosel
Eigenschaften
Ort: Enkirch (6910)Sort Wohnung: Alle
Wohnfläche: 193m2
Anzahl Zimmer: 7
Anzahl Stockwerke: 2
Wärme: Olie
Grundstück ges.: 487m2
Referenz: 6910
Kontakt
Bilder
Beschreibung Objekt
Lage
In ruhiger und sonniger Lage von Enkirch, einem der schönsten Fachwerkdörfer an der Mittelmosel, befindet sich dieses gepflegte halb freistehende Wohnhaus mit zwei Ferienwohnungen, Doppelgarage, Balkon und liebevoll angelegtem Garten.
Das Haus bietet vielfältige Nutzungsmöglichkeiten – ideal für Familien mit generationsübergreifendem Wohnen, als Kombination von Wohnen und Vermietung, oder als reines Anlageobjekt mit Ferienvermietung.
Enkirch liegt idyllisch zwischen Traben-Trarbach und Zell an der Mittelmosel und ist bekannt als die „Schatzkammer rheinischen Fachwerkbaus“.
Der Ort bietet eine hervorragende Infrastruktur:
- Ärzte, Geschäfte, Restaurants und Straußwirtschaften
- Kindergarten und Grundschule im Ort
- Weiterführende Schulen, Bahnanschluss, größere Einkaufsmöglichkeiten und Krankenhäuser in Traben-Trarbach (5 km) und Zell (15 km)
- Flughafen Hahn in ca. 20 Minuten, Autobahnanbindungen in Wittlich oder Rheinböllen in ca. 35 Minuten
Zahlreiche Wander- und Radwege, wie der Moselsteig oder der Jakobsweg, sowie Sport-, Tennis- und Minigolfplätze sorgen für Freizeitmöglichkeiten direkt vor der Haustür. Mehr Info: https://www.enkirch.de/
Raumaufteilung
Erdgeschoss (ca. 63 m²)
- Großzügiger Eingangsbereich
- Helles Wohn- / Esszimmer mit Zugang zum Balkon und Blick auf Dorf & Weinberge
- Küche mit Einbaugeräten
- Gäste-WC
- Abstellraum
Obergeschoss (ca. 56 m²)
- Zwei Schlafzimmer
- Büro / Gästezimmer
- Modernes Bad mit Dusche, WC und zwei Waschbecken
- Begehbarer Kleiderschrank
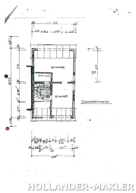
Dachgeschoss (ca. 39 m²)
- Gemütliche, möblierte Ferienwohnung
- Offener Wohn- / Schlafbereich mit Küche
- Duschbad mit WC
(Zugang über den Wohnbereich des Hauptteils)
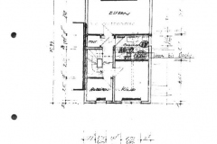
Untergeschoss (ca. 35 m²)
- Separat zugängliche, möblierte Ferienwohnung mit Küche, Schlafzimmer und Duschbad
- Eigene Gartenterrasse mit Zugang zum gepflegten Garten
Sonstiges
Das Haus befindet sich in einem sehr gepflegten Zustand und ist sofort nutzbar. Durch die vorhandenen Ferienwohnungen eignet sich das Objekt sowohl zur Eigennutzung mit zusätzlichem Einkommen als auch als Ferienimmobilie mit Vermietungspotenzial.
Ausstattung
- Doppelt verglaste Kunststofffenster mit Rollläden
- Ölzentralheizung
- Fußbodenheizung im Erdgeschoss und im Bad im 1. Obergeschoss
- Böden aus Fliesen, Laminat und PVC
- Elektrische Garagentore
- Garten mit Zugang von außen oder über die Einliegerwohnung
- Großteils möbliert (im Kaufpreis enthalten)
- Ausweistyp: Verbrauchsausweis
Energieträger: Heizöl EL
Baujahr: 1993
Endenergiebedarf: 58,80 kWh/(m² a)
Energieeffizienzklasse: B

Deutsch
Nederlands
English


