Vrijheid in Rhaunen, Hunsrück – Gemoderniseerd meergezinswoning met groot perceel en potentieel
Kenmerken
Plaats: Rhaunen (7078)Type: (vakantie) huizen
Woonoppervlakte: 331m2
Aantal kamers: 7
Aantal verdiepingen: 1
Verwarming: Olie
Kavel grootte: 3676m2
Referentie nr.: 7078
Neem contact op
Afbeeldingen
Omschrijving woning
De woning is gelegen in het idyllische dorp Rhaunen in de Hunsrück – een regio die bekendstaat om haar ongerepte natuur, uitgestrekte landschappen en hoge levenskwaliteit. Rhaunen zelf biedt een prettige combinatie van landelijke rust en een goed functionerende basisinfrastructuur.
In het dorp vindt u voorzieningen voor de dagelijkse behoeften, zoals winkels, huisartsen, horeca en onderwijs. De omgeving wordt gekenmerkt door bossen, weilanden en talrijke wandel- en fietsroutes – ideaal voor natuurliefhebbers, gezinnen en iedereen die wil ontsnappen aan de drukte van alledag.
Ondanks de rustige ligging is de bereikbaarheid goed: grotere steden zoals Frankfurt am Main, Keulen en Düsseldorf zijn met de auto bereikbaar, wat de locatie ook aantrekkelijk maakt voor forenzen of als tweede verblijf. De luchthaven van Frankfurt ligt bovendien op comfortabele afstand.
Hier woont u midden in de natuur, in alle rust – zonder volledig afgelegen te zijn. Een plek waar levenskwaliteit echt voelbaar is.
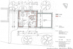
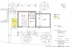
Indeling & Uitrusting
Moderne woning (ca. 126 m²):
- Kelder: garage, carport, werkplaats, bijkeuken
- Begane grond: hal, gastentoilet, voorraadruimte en ruime woon-/eet-/keukenruimte met balkon
- Verdieping: overloop, grote slaapkamer, badkamer met bad, douche, wastafel en toilet, kinderkamer met eigen badkamer
Oorspronkelijke woning (ca. 105 m²):
- Gedeeltelijk onderkelderd en 2 buitenparkeerplaatsen
- Begane grond: hal, woonkamer, keuken, werkkamer, gastentoilet
- Verdieping: overloop, slaapkamer met inloopkast en extra slaapkamer
- Zolder: badkamer met bad, toilet en wastafel
Het grote perceel biedt volop mogelijkheden: dieren houden, tuinieren of gewoon genieten van rust en ruimte.
Objectbeschrijving
Stel je voor dat je elke ochtend wakker wordt in volledige rust – omringd door natuur, met uitzicht over velden en bossen. Dit bijzondere huis in de Hunsrück is meer dan alleen een woning – het is een plek om aan te komen, tot rust te komen en te blijven.
De voormalige boerderij werd in 2000 met zorg omgebouwd tot twee wooneenheden. Daarbij ontstond een moderne, lichte woning in de voormalige stal, met open ruimtes en een aangename woonsfeer. Tegelijkertijd bleef de oorspronkelijke woning behouden, met haar karakter en charme.
Een bijzonder aspect: de huidige eigenaren blijven in hun woning wonen (recht van gebruik). Voor jou als koper biedt dit de kans om op lange termijn een unieke woonplek veilig te stellen.
Doelgroepen
- Particulieren die rust en natuur zoeken
- Kopers met lange termijn visie
- Gezinnen / meergeneratiewonen
- Liefhebbers van buitenleven
Infrastructuur
- Voorzieningen in de buurt
- Bushalte op loopafstand
- Goede verbinding naar grotere steden
Energieausweis ist im Auftrag

Nederlands



